Christian Ubertini


ENGLISH >



 
CASA LEGNO
CONSTRUCTION D'UNE MAISON A PETIT BUDGET EN PREFABRIQUE DE BOIS
2004-2005 / Breno, Suisse
Ubertini & Schoenenberger architectes










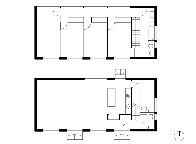
Cette maison familiale simple a été réalisée en éléments préfabriqués de bois, avec des matériaux naturels et avec des coûts restreints. Le projet et les détails constructifs ont été optimisés pour réduire de manière substantielle les coûts de construction tout en préservant la qualtié des espaces intérieurs et l'utilisation de matériau naturel de choix. La structure de 14 x 6 m repose sur des pilotis réalisés avec des éléments en ciment préfabriqués. Le séjour et les chambres bénéficient de grandes ouvertures au sud alors que les espaces de circulation le long de la façade arrière sont éclairés par des bandeaux de fenêtres hautes qui cadrent la vue sur les montagnes avoisinantes. L'expression traditionnelle de la maison, avec son revêtement en crépis et sa toiture à deux pans, sont imposés par le réglement communal de construction.

Architectes: Ubertini & Schoenenberger, CH-Breno
Charpentier: Schaerholzbau, CH-6147 Altbüron
Periode de construction : juillet 2004 – mars 2005
Surface habitable: 120 m2 (brut: 168 m2)
CHF/m3 SIA: CHF 620.-
Coût: CHF 435’000.- (BKP2)